5 locali in vendita

Firenze, Via degli artisti - Masaccio Savonarola
€ 550.000
5 locali 5 locali
135 Mq 135 Mq
3 bagni 3 bagni

5 locali in vendita

Firenze, Via degli artisti - Masaccio Savonarola

Descrizione annuncio

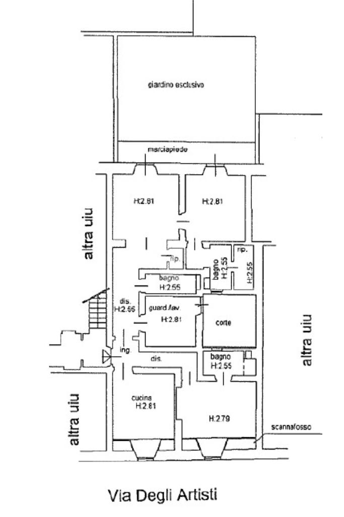
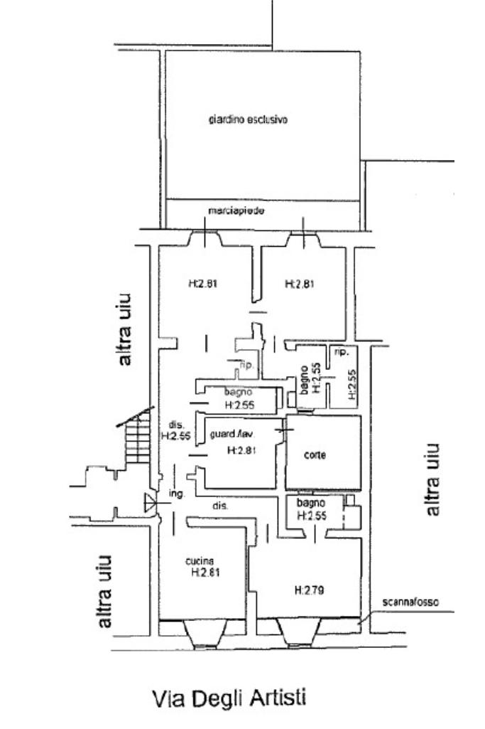
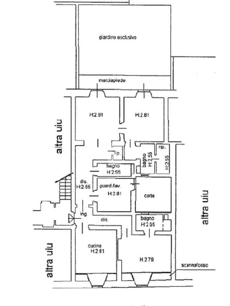
Via degli Artisti Appartamento ristrutturato con giardino in elegante palazzina dei primi del ’900

In contesto signorile dei primi del ’900 proponiamo un appartamento completamente ristrutturato nel 2018, posto al piano seminterrato e dotato di un curato giardino privato.

L’immobile, di circa 110 mq, è composto da:

cucina abitabile con finestra su strada,ampio soggiorno con accesso diretto al giardino,due camere matrimoniali, entrambe con bagno en suite e cabina armadio, di cui una con accesso diretto al giardino.camera/studio con accesso ad una comoda corte interna,terzo servizio igienico per gli ospiti,ripostiglio.

La ristrutturazione è stata eseguita con finiture di pregio e particolare attenzione ai dettagli. L’appartamento è dotato di aria condizionata, zanzariere, tenda da sole per il giardino e impianto di irrigazione automatizzato gestibile anche da remoto.

Il giardino privato, di circa 80 mq, è suddiviso in una zona pavimentata ideale per pranzi all’aperto e in un’area verde perfettamente curata.

Il riscaldamento è autonomo e le spese condominiali sono contenute. Le facciate della palazzina sono state recentemente ristrutturate.

La zona è caratterizzata da abitazioni signorili e studi professionali (avvocati, notai, ingegneri, medici). A piedi si raggiungono in pochi minuti il centro storico, la stazione di Campo di Marte, il Mercato di Sant’Ambrogio e Piazza d’Azeglio. Il quartiere offre numerosi negozi di vicinato ed è ben servito dai mezzi pubblici; la posizione consente comunque di muoversi agevolmente anche a piedi o in bicicletta.

Mostra tutto

Nelle vicinanze

Trasporto pubblico Trasporto pubblico
stazione di Firenze Campo di Marte
stazione di Firenze Campo di Marte
680 m
stazione di Firenze Statuto
stazione di Firenze Statuto
1,8 Km
Strozzi - Fallaci
Strozzi - Fallaci
1,5 Km
Statuto
Statuto
1,6 Km
Ficino
Ficino
80 m
Ricariche auto elettriche Ricariche auto elettriche
Eneldrive (ex SILFI) Castagno
250 m
Eneldrive (ex SILFI) Matteotti
350 m
Eneldrive (ex SILFI) Leonardo da Vinci
360 m
Eneldrive Ataf
460 m
Eneldrive Nardi
490 m
Scuole Scuole
Scuola Primaria "Enriques-Capponi"
290 m
Kindergarten scuola media bilingue
450 m
Canadian School of Florence
470 m
Università degli Studi di Firenze - Dipartimento di Architettura - Palazzo San Clemente
530 m
Liceo Statale Giovanni Pascoli
540 m
Farmacia Farmacia
Farmacia Donatello
240 m
Antica Farmacia del Pino
400 m
Farmacia
470 m
Farmacia Fedema
610 m
Farmacia Mazzini
680 m
Ospedali Ospedali
Villa Donatello
290 m
Ospedale di Santa Maria Nuova
1,1 Km
Unità spinale
2,7 Km
Ospedali
2,8 Km
Centro traumatologico ortopedico - CTO
2,8 Km
Supermercati Supermercati
Esselunga
500 m
Marguerita Conad
760 m
COOP.fi
840 m
Il Villaggio dei Popoli
950 m
Carrefour Express
1,0 Km
Negozi Negozi
Carrefour
140 m
Rossella Forconi
320 m
Gesbim
330 m
Atelier du Maman
340 m
Il Fiokko
350 m
Bar Bar
Bar
200 m
Bar Donatello
420 m
Cabaret
430 m
Chapeau
440 m
Panico
470 m
Ristoranti Ristoranti
La Taverna degli Artisti
170 m
Edi House
280 m
Don Féfé
330 m
Satori
340 m
Osteria delle Tre Panche
390 m
Mostra tutto

Caratteristiche

Rif.:
61145626
Piano:
-1 di 2 (Piano seminterrato)
Camere da letto:
3
Arredamento:
Completo
Condizionamento:
Autonomo
Ascensore:
No
Mostra tutto
Prezzo Prezzo
€ 550.000
Rata mutuo Rata mutuo
€ 2.613 / mese
Spese annue Spese annue
€ 1.200
Proponi il tuo prezzoProponi il tuo prezzo

Classe Energetica

G
G
G
G
G
G
G
G
G
EP globale non rinnovabile:
183.24 kW h/m² anno
EP globale rinnovabile:
1.77 kW h/m² anno
EP invernale del fabbricato:
EP estiva del fabbricato:
Anno di costruzione:
1901
Riscaldamento:
Autonomo
Tipo impianto:
A radiatori
Tipo alimentazione:
Metano

Ti interessa visionare l'immobile?

Fissa un appuntamento  Fissa un appuntamento

Richiedi informazioni

Clicca su Leggi per aprire l'informativa
* Questi campi sono obbligatori

Calcola il tuo mutuo

Semplice e senza impegno
Anticipo

( % )
Mutuo

( % )

pochi semplici passi

inserisci i tuoi dati
Questionario completato
Grazie per aver richiesto un appuntamento senza impegno con un nostro Consulente del Credito e Assicurativo.

Hai inserito correttamente tutti i dati necessari e a breve riceverai una e-mail con un link da convalidare per inviare i tuoi dati.
Affiliato
Studio Masaccio Savonarola Sas
Via Masaccio, 33/R 50132 Firenze (FI)

Il nostro staff


  • Francesco Baggio
    Affiliato

  • Mara Cazzetta
    Coordinatrice

  • Domenico Gullo
    Collaboratore

  • Antonio Gori
    Responsabile
Via Masaccio, 33/R 50132 Firenze (FI)
Zona: Masaccio-Savonarola-Mazzini
Mostra su mappa
Orari: Lun-Ven 09:00 - 13:00 / 15:30 - 20:00 Sab 09:00 - 13:00 / 15:00 - 18.00 Dom Su Appuntamento
Affiliato
Studio Masaccio Savonarola Sas
Via Masaccio, 33/R 50132 Firenze (FI)

2026 Tecnocasa Franchising S.p.A. - P. IVA 08365160152 - Via Monte Bianco 60/A 20089 Rozzano (MI). Ogni agenzia ha un proprio titolare ed è autonoma. Privacy policy | Policy utilizzo | Cookie policy