Multilocale in vendita

Firenze, Appartamento viale gramsci - Mazzini
€ 645.000
9 locali 9 locali
250 Mq 250 Mq
2 bagni 2 bagni

Multilocale in vendita

Firenze, Appartamento viale gramsci - Mazzini

Descrizione annuncio

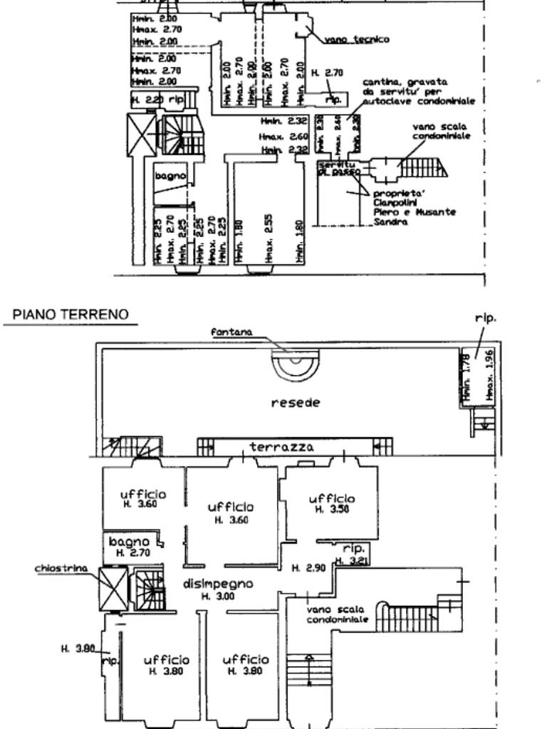
Categoria catastale A/10 (UFFICIO - Da valutare la possibilità di cambiare la destinazione d'uso in civile abitazione).

Viale Gramsci, nei pressi di Piazza Beccaria, proponiamo la vendita di un bellissimo ufficio di 250 mq circa.

L'unità immobiliare è composta da 9 vani adibiti ad uso ufficio disposti su due livelli, doppio servizio igienico e un giardino interno esclusivo, ideale per studi medici e professionali.

L'immobile si distingue per gli ambienti ampi e ben distribuiti, che garantiscono funzionalità e comfort lavorativo.

L'ambiente risulta essere molto luminoso, con eccellente esposizione che garantisce luce naturale costante e un contesto di lavoro piacevole e rappresentativo.

La zona è caratterizzata da abitazioni signorili e studi professionali (avvocati, notai, ingegneri, medici). A piedi si raggiungono in pochi minuti il centro storico, la stazione di Campo di Marte, il Mercato di Sant’Ambrogio e Piazza d’Azeglio. Il quartiere offre numerosi negozi di vicinato ed è ben servito dai mezzi pubblici; la posizione consente comunque di muoversi agevolmente anche a piedi o in bicicletta.

Mostra tutto

Nelle vicinanze

Trasporto pubblico Trasporto pubblico
stazione di Firenze Campo di Marte
stazione di Firenze Campo di Marte
610 m
stazione di Firenze Santa Maria Novella
stazione di Firenze Santa Maria Novella
1,9 Km
Unità
Unità
1,7 Km
Valfonda - Stazione Santa Maria Novella
Valfonda - Stazione Santa Maria Novella
1,8 Km
Gramsci Segni
Gramsci Segni
20 m
Ricariche auto elettriche Ricariche auto elettriche
Eneldrive (ex SILFI) Nathan Cassuto
140 m
Eneldrive (ex SILFI) D'Azeglio
290 m
Eneldrive (ex SILFI) Porta alla Croce
420 m
Eneldrive (ex SILFI) Mercato di Sant'Ambrogio
530 m
Garage Florence Parking | EnelX
540 m
Scuole Scuole
Scuola Secondaria di Primo Grado "Giosuè Carducci"
200 m
Università degli Studi di Firenze - Dipartimento di Architettura - Plesso di Santa Verdiana
310 m
Canadian School of Florence
330 m
Scuola Primaria "Cairoli"
400 m
Liceo Scientifico "Guido Castelnuovo"
440 m
Farmacia Farmacia
Farmacia Fedema
190 m
Parafarmacia Borgo La Croce
350 m
Farmacia Mazzini
380 m
Farmacia Bargioni
430 m
Farmacia Ninci
450 m
Ospedali Ospedali
Villa Donatello
590 m
Ospedale di Santa Maria Nuova
850 m
Ospedale Piero Palagi
2,1 Km
CUR 112 TOSCANA
2,2 Km
Supermercati Supermercati
Coop
410 m
Conad City
450 m
Il Villaggio dei Popoli
550 m
Pam
970 m
Conad city
980 m
Negozi Negozi
Negozi
180 m
Societé Anonyme
220 m
Tentazioni
370 m
La Spiga
380 m
Club della Moda
380 m
Bar Bar
Bar D'Azeglio
100 m
Bar Argentina
110 m
Sisters' Bar
160 m
Caffè Bellavista
220 m
Bar Donatello
360 m
Ristoranti Ristoranti
La Raccolta
160 m
Trattoria Cesarino
200 m
Ararat Cucina Armena
340 m
Hibiki-àn
360 m
Cucineria La Mattonaia
370 m
Mostra tutto

Caratteristiche

Rif.:
61180891
Piano:
Su più livelli di 2
Totale piani:
2
Balconi:
1
Camere da letto:
4
Arredamento:
Assente
Mostra tutto
Prezzo Prezzo
€ 645.000
Rata mutuo Rata mutuo
€ 3.040 / mese
Spese annue Spese annue
€ 200
Proponi il tuo prezzoProponi il tuo prezzo

Classe Energetica

G
G
G
G
G
G
G
G
G
EP globale non rinnovabile:
175.00 kW h/m² anno
EP globale rinnovabile:
10.00 kW h/m² anno
EP invernale del fabbricato:
EP estiva del fabbricato:
Anno di costruzione:
1900
Riscaldamento:
Autonomo
Tipo impianto:
A radiatori
Tipo alimentazione:
Metano

Ti interessa visionare l'immobile?

Fissa un appuntamento  Fissa un appuntamento

Richiedi informazioni

Clicca su Leggi per aprire l'informativa
* Questi campi sono obbligatori

Calcola il tuo mutuo

Semplice e senza impegno
Anticipo

( % )
Mutuo

( % )

pochi semplici passi

inserisci i tuoi dati
Questionario completato
Grazie per aver richiesto un appuntamento senza impegno con un nostro Consulente del Credito e Assicurativo.

Hai inserito correttamente tutti i dati necessari e a breve riceverai una e-mail con un link da convalidare per inviare i tuoi dati.
Affiliato
Studio Masaccio Savonarola Sas
Via Masaccio, 33/R 50132 Firenze (FI)

Il nostro staff


  • Francesco Baggio
    Affiliato

  • Mara Cazzetta
    Coordinatrice

  • Domenico Gullo
    Collaboratore

  • Antonio Gori
    Responsabile
Via Masaccio, 33/R 50132 Firenze (FI)
Zona: Masaccio-Savonarola-Mazzini
Mostra su mappa
Orari: Lun-Ven 09:00 - 13:00 / 15:30 - 20:00 Sab 09:00 - 13:00 / 15:00 - 18.00 Dom Su Appuntamento
Affiliato
Studio Masaccio Savonarola Sas
Via Masaccio, 33/R 50132 Firenze (FI)

2026 Tecnocasa Franchising S.p.A. - P. IVA 08365160152 - Via Monte Bianco 60/A 20089 Rozzano (MI). Ogni agenzia ha un proprio titolare ed è autonoma. Privacy policy | Policy utilizzo | Cookie policy